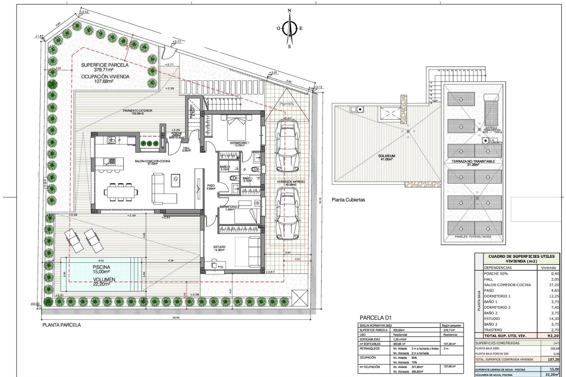
VILLA MODERNA DE NUEVA CONSTRUCCIÓN EN BENIJOFAR Villa de nueva construcción situada en Benijófar, una zona privilegiada de la Costa Blanca, dotada de todos los servicios, a 20 minutos del Aeropuerto de Alicante, cerca de las preciosas playas de Guardamar y de varios campos de golf. Se trata de un chalet de estilo moderno que consta de cocina americana con amplio salón-comedor, 3 dormitorios y 2 baños. También tiene una parcela privada con terraza, zona de aparcamiento, piscina privada. Posibilidad de solarium con coste adicional. Benijofar es un pueblo encantador con una iglesia encantadora y todos los servicios como supermercados, farmacias, bancos, restaurantes y parque natural situado muy cerca de las villas. Hay varios campos de golf cerca, así como parques acuáticos en las cercanas Rojales y Torrevieja. Benijófar situado a pocos minutos de la N-332 y AP-7. A tan solo 30 minutos del aeropuerto de Alicante, a 10 minutos de las playas de Guardamar y Torrevieja.