The property shop

Orihuela Costa · Lomas de Cabo Roig Apartment · New Build

187.500€

Characteristics

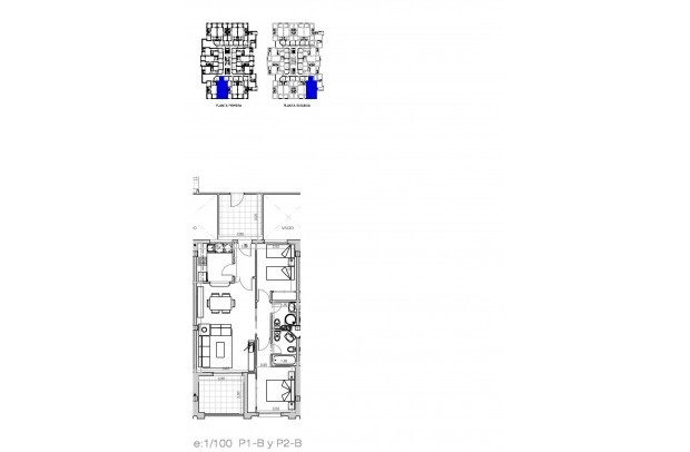
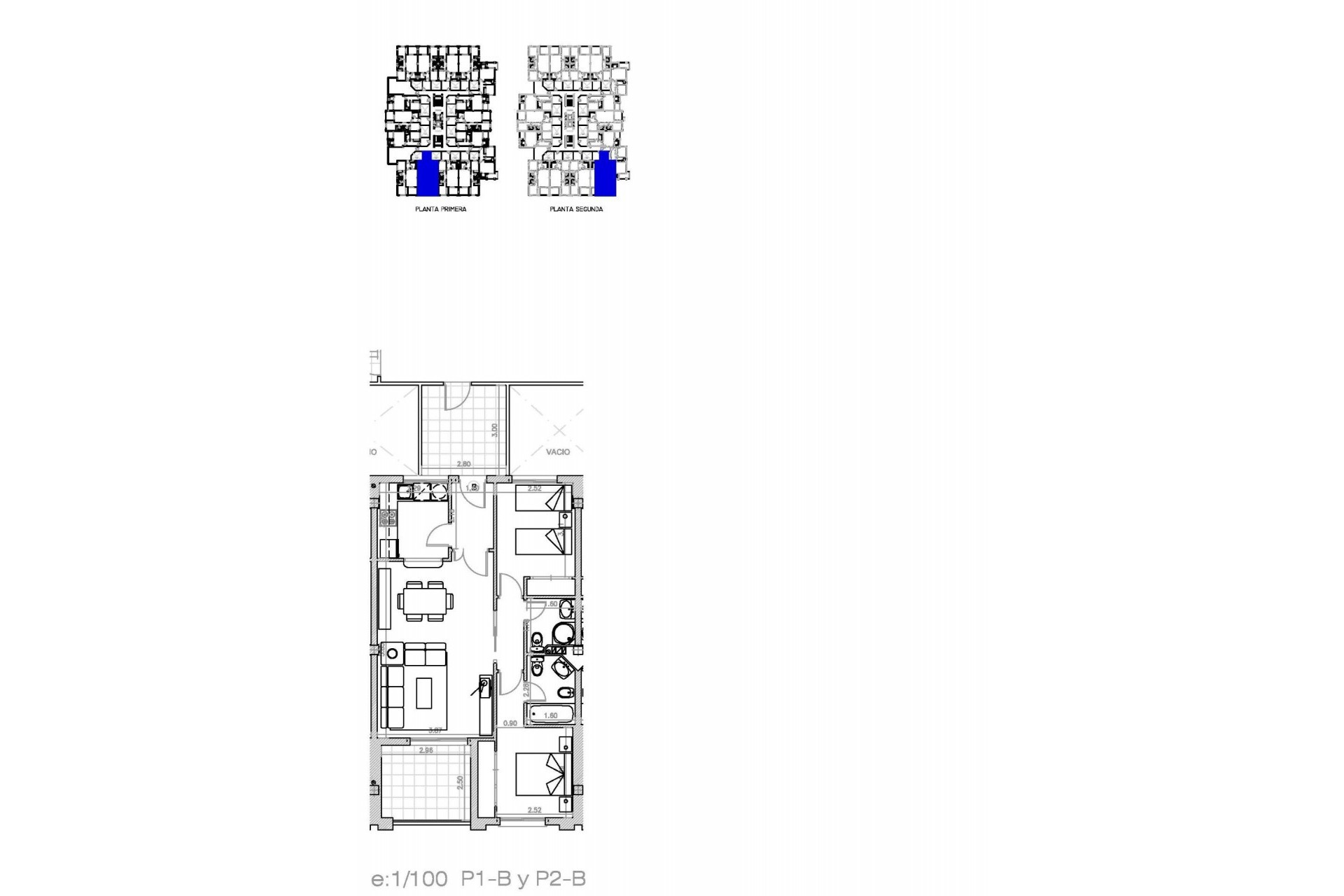
  • 69 m2
  • 2
  • 2
Bedrooms: 2
Bathrooms: 2
Built: 69m2
Communal Pool
Key Ready
Near Schools
Gated
Elevator/Lift
Near Trees
Near Commercial Center
Location: Coastal, Urbanisation
Double Bedrooms: 2
Terrace: 17 Msq.
Beach: 2000 Meters
Useable Build Space: 60 Msq.
Parking - Space

Description

Location


WhatsApp